Lokal użytkowy Ciasna,
Ciasna Pokaż na mapie ›
Ogłoszenie archiwalne Wygasło: Niedziela, 05 Październik, 2025 12:47
1 600 zł
Szczegóły ogłoszenia
- Kategoria: Biura i lokale / Do wynajęcia
- Przeznaczenie:Inne przeznaczenie
- Powierzchnia:50 m2
- Sprzedaż:Pośrednik
- Cena: 1 600 zł
Opis oferty
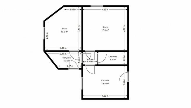
Lokal użytkowy o pow. użytkowej 50m/2 położony na parterze w budynku wolnostojącym z osobnym wejściem. W skład lokalu wchodzi:- biuro nr 1 o pow. 17,60m2- biuro nr 2 o pow. 13,20m2- pokój socjalny o pow. 13m/2- łazienka o pow. 3,30m2- korytarz o pow. 4,30m/2Atuty nieruchomości:- niezależne wejście od głównej ulicy,- dostęp z drogi krajowej nr 11- parking- lokal kompletnie przygotowany pod usługi typu: biura, kancelarie- kompletnie urządzony i wyposażony pokój socjalnySzczegóły najmu:- czynsz miesięczny 1600 zł - kaucja: do uzgodnienia Lokal jest wyposażony w następujące instalacje:- elektryczną,- wodociągową,- kanalizacyjną,- grzewcząLokalizacja:- dogodny wjazd z drogi krajowej nr 11- w miejscowości siedziba Gminy Ciasna, przychodnie, szkołaPo więcej informacji zapraszamy do opiekuna oferty - Sławka Kołcz tel. 578 - pokaż numer telefonu -Numer oferty: 467270
Sprawdź zainteresowanie tym ogłoszeniem
Wyświetlenia
Data dodania
Ostatnio widziany
Obserwujących
Wysłane zapytania
Odsłony telefonu
Powiadom o podobnych ogłoszeniach
Lokalizacja: Ciasna
Kategoria: Nieruchomości » Biura i lokale » Do wynajęcia
Cena: od 1500 zł do 2000 zł Powierzchnia : od 43 m2 do 58 m2
Chcę otrzymywać powiadomienia o nowych ofertach
To ogłoszenie jest archiwalne i może być nieaktualne.
- Wypromuj ogłoszenie
- Zgłoś naruszenie
- Edytuj/usuń ogłoszenie
- Udostępnij ogłoszenie
- Dodaj na Facebook




























